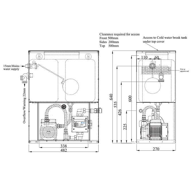
CAT 5 Break Tank Units
Pump Products
Downloads
Lowara Mini Fix Tank CAT 5 Wall Mountable
Contact us for your tailor-made price
The Lowara Mini fix tank single pump unit has been designed to be compact and provides a fluid category 5 air gap complying with the Water Supply (water fittings) Regulations 1999.
Suitable for:
- Wash down in bin stores
- Dentists rinsing equipment
- School laboratory water supplies
- Single hosepipe supplies
- Industrial applications where Category 5 protection is required
Main features:
- PABLRM15 0,37kW 230/1/50 peripheral pump
- Typical duty: 0.25 litres / sec @ 2.0 bar
- Genyo pressure controller – starts the pump on fall in pressure, stops the pump when there is no demand
- Low water level protection
- 18 litre polyethylene break tank
- Stainless Steel Housing suitable for wall or floor mounting
A larger range of commercial category 5 pump & tank systems can be viewed here:
https://www.coldwaterboostersets.co.uk/product/booster-sets-c-w-cold-water-grp-storage-tanks/







