CAT 5 Break Tank Units
Pump Products
Downloads
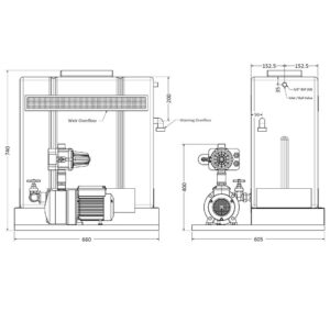
Calpeda MXHM206/A-AGAP80 CAT 5 Unit 230/1/50
Contact us for your tailor-made price
The Calpeda MXHM206/A-AGAP80 single pump CAT 5 unit has been designed to be compact and provides a fluid category 5 air gap complying with the Water Supply (water fittings) Regulations 1999.
Suitable for:
- Wash down in bin stores
- Dentists rinsing equipment
- School laboratory water supplies
- Single hosepipe supplies
- Industrial applications where Category 5 protection is required
Main features:
- MXHM206/A WRAS approved horizontal stainless steel pump c/w 1.1kW 230/1/50 IP54 motor
- Typical duty: 50 litres / min / sec @ 5.0 bar
- Idromat 5-30 pressure controller – starts the pump on fall in pressure, stops the pump when there is no demand
- Low water level protection
- 80 litre polyethylene break tank
A larger range of commercial category 5 pump & tank systems can be viewed here:
https://www.coldwaterboostersets.co.uk/product/booster-sets-c-w-cold-water-grp-storage-tanks/









